Offering:
1 bedroom apartments
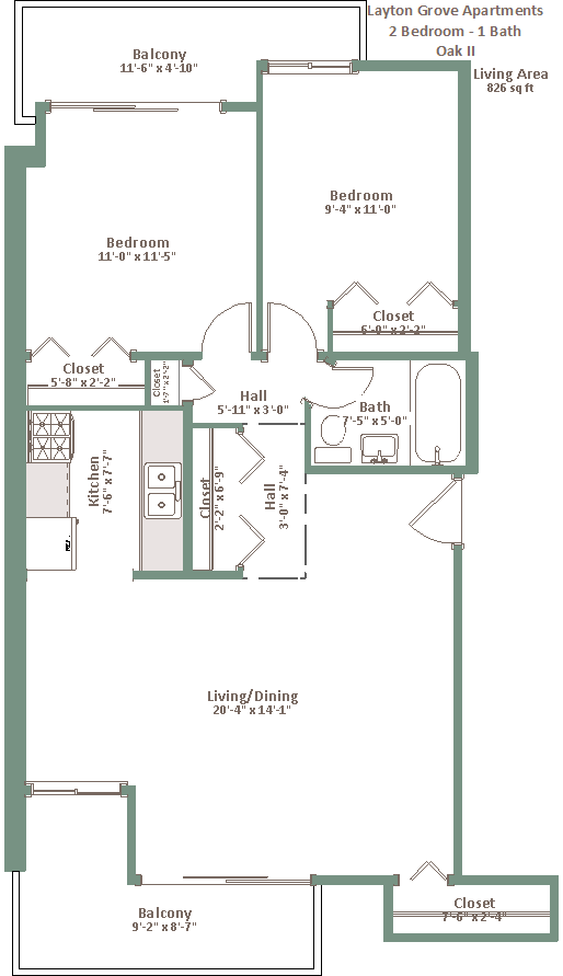
starting at $1113*Units Available!2 bedroom apartments
starting at $1196*Units Available!
Renter's Insurance
To protect your belongings in case of fire, theft, or damage, you need your own insurance policy, called an HO4 renter's insurance policy. You also need liability coverage for damages caused by negligence. Contact your Insurance agent today. If you do not have an agent and don’t wish to look into other companies you can apply through Assurant Insurance.
Property Features
Heat Included
Never worry about your heating bill with free heat, cooking gas, and hot water
Pets
Welcome
Dogs and cats allowed, pet policy and breed restrictions apply
Offstreet
Parking
One free spot included with rent
Emergency Maintenance
24-Hr Emergency Maintenance
Unit Amenities
- Heat included
- Cooking gas included
- Hot water included
- Water & sewer included
- Appliances
- Off-street parking
- On bus line
- Laundry facilities
- Air conditioning equipment
- Pets welcome
- Patio/balcony
- Play area
- Cable offered
- On-site management & maintenance services
- Professional management & leasing staff
- Storage lockers
